Military Research Laboratory for the Lithuanian Ministry of National Defense

Address: Kauno m. sav., Kauno m., Radvilėnų pl. 19

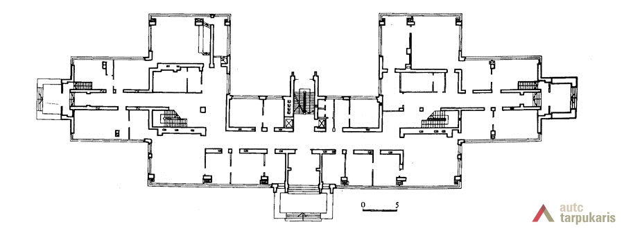
A need to build the Military Research Laboratory for the Ministry of National Defence arose in the early 1930s, after the participants of the National Weaponry Conference had established that Lithuania was in danger of potential attacks. The main purpose of the new laboratory was to embark on scientific research in the fields of explosive weapons, ballistics, biochemistry, microbiology, toxicology and etc. The winning project in the design competition was submitted by architect Vytautas Landsbergis-Žemkalnis. His design was heavily influenced by the contemporary Modernist theory, and by the famous Louis Sullivan’s motto: ‘form follows function’. Due to the application of particularly high-quality building materials, and the importance of the laboratory’s work for the national security, the original structure survives intact. Up to now the laboratory’s building fascinates the architecture lovers by its exceptionally fine combination of functionality and ‘clean’ Modernist aesthetics. Although the flat roof, strip-like windows, white plain façade, and the reinforced concrete construction are archetypal traits of the International Style, the laboratory’s design also has some distinctively Lithuanian characteristics. Modernism is combined here with some Neo-classicist tendencies, which are reflected in the symmetrical massing of the structure, monumental aesthetics, and in the visual emphasis on grand central entrance to the building.

Kristina Rimkutė