LT
EN
AUTC
Kaunas old town
Routes
About interwar architecture
Architects
Gallery
Search
Map
About
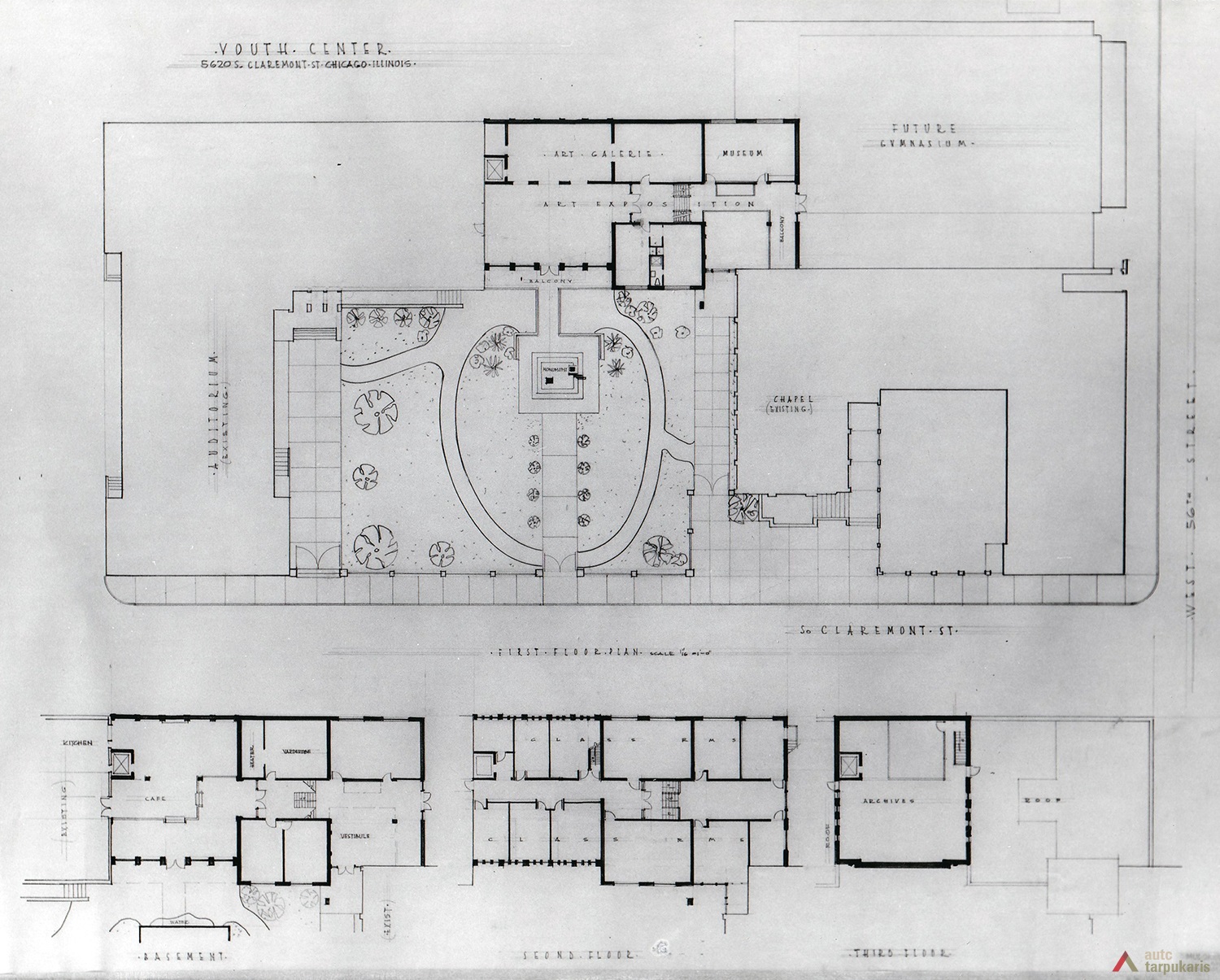
Lithuanian Youth Center in Chicago
Address: 5620 S Claremont Ave, Chicago, IL 60636, Jungtinės Valstijos
Architects:
Jonas Mulokas
Rimas Mulokas
Years:
1968 - 1974
Territories:
Back to list