The Palace of the Common Labourers in Kaunas

Address: Kauno m. sav., Kauno m., Vytauto pr. 79

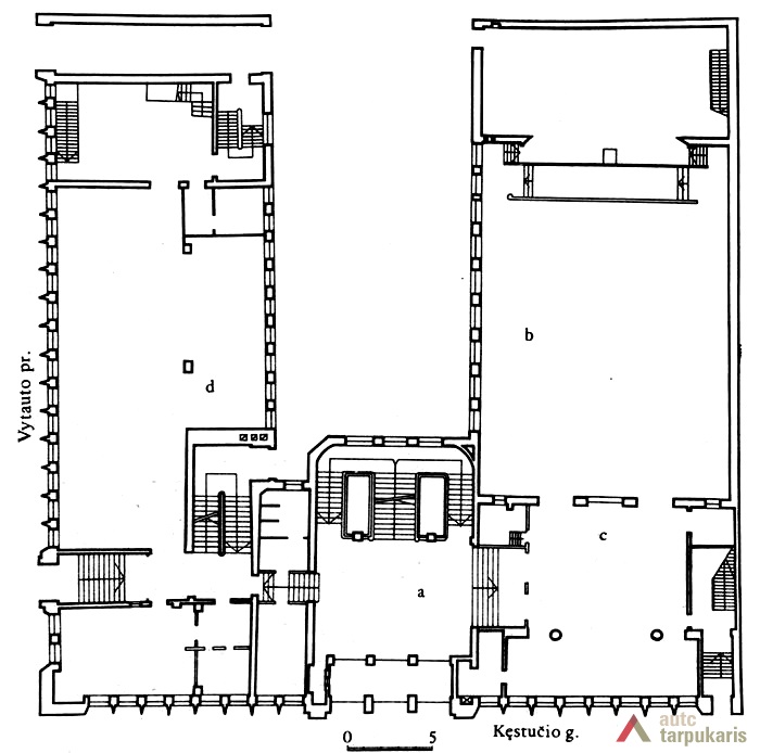
The Palace of the Common Labourers in Kaunas served as the hub of the Lithuanian proletariat. A concept of such type of institution was much inspired by similar projects in other socialist countries; e.g., Zuev Workers' Club (1926-8) in Moscow designed by Ilia A. Golosov. Although the exterior of the Kaunas’ institution is characterised by rather austere and monolithic aesthetics, the interior of the Palace is well designed for all type of cultural-educational needs of the workers. Originally, it housed not only a theatre hall with a seated capacity of 1000, a community hall (400 seats) and various sorts of leisure rooms, but also a library with reading rooms. It is clear from articles published in the contemporary press that the Palace was a popular gathering place, which functioned as an efficient tool of political propaganda.  Over a period of time the main functional purpose of this institution has been changed more than once. During the German occupation the structure served as headquarters of the Gestapo. The Soviets adopted the building for the use of the Trade-Unions.

Kristina Rimkutė