Gyvenamasis namas Jurkupių kaime

Adresas: Rokiškio rajono sav., Jurkupių k. (Panemunėlio sen.)

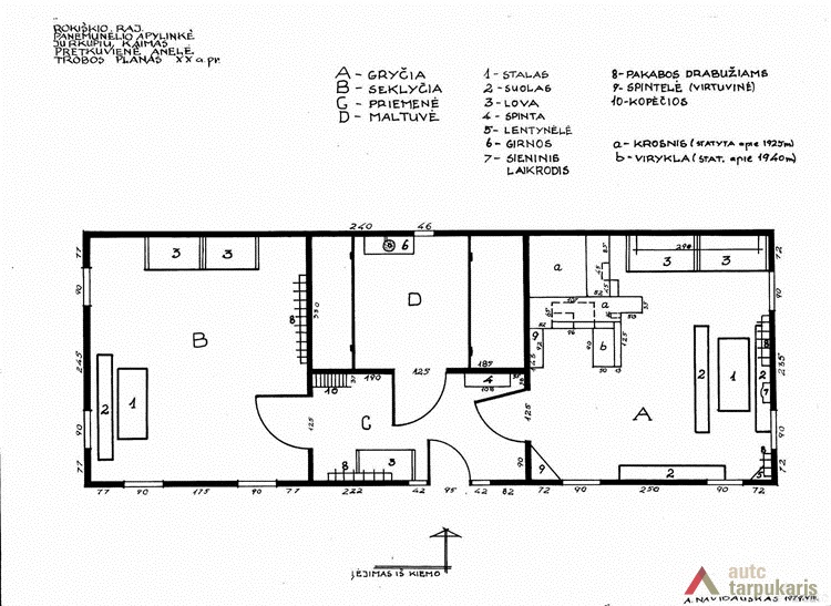
Tradicinis aukštaitiškas dvigalis gyvenamasis namas (gryčia). Išplanavimas simetriškas, būdingas šio regiono namams: viename gale seklyčia, kitame – gryčia, o per vidurį priemenė, nuo kurios atitverta kamara (čia vadinama „maltuve“). „Maltuvėje“ stovėdavo girnos, būdavo malami nedideli kiekiai javų, be to, šioje patalpoje laikyti maisto produktai, daržovės. Svarbiausia gyvenamojo namo patalpa –  gryčia su krosnimi (statyta apie 1925 m.) Duonkepė krosnis daugiafunkcinė – joje virė valgį, kepė duoną, ja apšildė patalpą, ant jos miegodavo. Vėliau, apie 1940 m., prie krosnies buvo pristatyta modernesnė virykla. Gyčioje vykdavo šeimos gyvenimas. Kitame namo gale esanti seklyčia nešildoma, joje nėra krosnies. Dažniausiai ši patalpa naudota svečiams priimti, joje stovėjo geresni baldai. 1979 m. name dar buvo išlikęs tradicinis baldų sustatymas, interjeras, tikėtina, mažai pakitęs (tuo metu namas priklausė Anelei Pretkuvienei). Tiek gryčioje, tiek seklyčioje ties langais stovėjo stalai, o pasieniais – suolai. Lovos statytos palei kitą sieną, toliau nuo durų ir langų. Namo langai išdėstyti simetriškai, abiejuose galuose ir priekiniame fasade po du. Jie gana platūs (90 cm). „Nugariniame“ namo fasade langų nėra, tik kamaroje įrengtas mažas langelis (46 cm pločio).

Eligijus Juvencijus Morkūnas

 

 

 

Metai:
1918 - 1925
Teritorijos:
Atgal į sąrašą