Gyvenamasis namas su mokykla Grybinės kaime

Adresas: Marijampolės r. sav., Grybinės k. (Šunskų sen.)

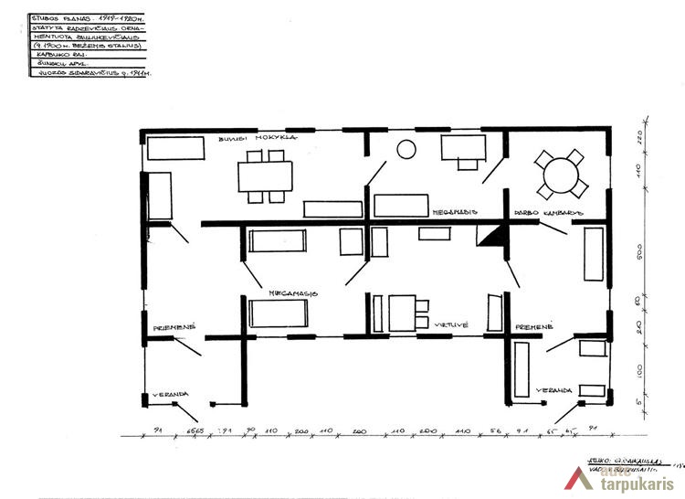
Suvalkietiškos stubos – gyvenamojo namo – planavimas kiek skiriasi nuo tradicinio, nes viename namo gale įrengta pradžios mokyklos klasė. Namas statytas 1919–1920 m., po Pirmojo pasaulinio karo, kai kūrėsi valstybė ir trūko patalpų mokykloms. Dažna kaimo ar miestelio mokykla būdavo įrengiama gyvenamajame name, kurio savininkas sutikdavo išnuomoti patalpas savivaldybei, atsakingai už mokyklų steigimą. Kartais name gyvendavo ir mokytojas su šeima. Šio namo pagrindiniame fasade netradiciškai simetriškai namo ašiai yra du įėjimai, pastatytos dvi verandos, dvi priemenės. Atskiras įėjimas buvo reikalingas mokiniams, pastarieji juo patekdavo į klasę. Namas su Suvalkijai būdingu ertikiu. Tai pat šiam regionui buvo būdingi čerpėmis dengti stogai. Namo langai dideli, šešių dalių, plačiais apvadais, su trikampio frontonėlio formos viršulangiais. Namas iki langų vertikaliai apkaltas lentelėmis. Iki stogo namą puošia vertikaliai sukaltų drožinėtų lentelių linija, kuri sudaro ornamentą ir suteikia namui puošnumo. Tai bežemio staliaus Pauliukevičiaus (g. 1900 m.) darbas. Namą statė meistras Radzevičius.

Eligijus Juvencijus Morkūnas 

Metai:
1919 - 1920
Teritorijos:
Atgal į sąrašą