Gyvenamasis namas Jurkšų kaime

Adresas: Vilkaviškio r. sav., Jurkšų k. (Pilviškių sen.)

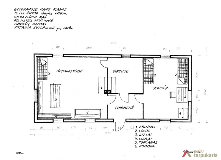
Tipiškas suvalkietiškas gyvenamasis namas – stuba. Statytas 1918 m. valstiečio, valdžiusio 12 ha žemės, ūkyje. Pastatas ilgas ir siauras. Tradiciškai stubos centrinėje dalyje yra virtuvė, į kurią patenkama per priemenę. Viename namo gale – seklyčia, kitame – šeimynstubė. Seklyčia nebuvo šildoma, joje mažiau gyventa, stovėdavo geresni baldai, priimdavo svečius. Šeimynstubė – pagrindinė patalpa, kur vykdavo kasdieninis šeimos gyvenimas. Pastato šildymui naudota tik šiam regionui būdinga krosnis – viryklė su pakura iš virtuvės. Stubos planinė struktūra plėtojosi iš trijų narvelių dviejų galų namo, ilgainiui išsiskaidydama į daugiau patalpų. 1981 m. name buvo išlikęs tradicinis interjeras: palei sienas sustatyti suolai, kampe stalas, prie kitos sienos – lovos. 

Eligijus Juvencijus Morkūnas

 

Metai:
1918
Teritorijos:
Atgal į sąrašą