Gyvenamasis namas Skemų kaime

Adresas: Rokiškio r. sav., Skemų k. (Rokiškio kaimiškoji sen.)

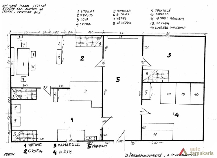
Aukštaitiškas gyvenamasis namas (gryčia) statytas 1937 m. Šio regiono namų planavimui buvo būdingos trys pagrindinės patalpos: centre priemenė (čia vadinama „nameliu“ ir du gyvenamieji galai. Paprastai gryčia ir priemenė turėjo pastovią paskirtį, o antrasis namo galas galėjo būti naudojamas kaip antroji gryčia (gyvenamoji patalpa), kamara (daiktų ir maisto podėlis) arba seklyčia (švari patalpa). Šiame name tradicinis planavimas kiek pakeistas: nuo gryčios atitverta virtuvė, o nuo kamaros – klėtis. Klėtyje padaryti aruodai, laikyti grūdai, įvairūs maisto produktai. Kamarėlėje miegodavo. Gryčios patalpoje stovinti krosnis didelė, joje virė valgį, ja apšildė patalpą, ant jos miegodavo. Atitvėrus virtuvę, pakura liko virtuvės pusėje. Antrasis namo galas (kamarėlė ir klėtis) nebuvo kūrenama.

Eligijus Juvencijus Morkūnas


Literatūra:

Bertašiūtė, R. et al. Vakarų Aukštaitijos tradicinė kaimo architektūra. Vilnius: Etninės kultūros globos taryba, 2008. 

Metai:
1937
Teritorijos:
Atgal į sąrašą