Gyvenamasis namas Narkūnėlių kaime

Adresas: Rokiškio r. sav., Narkūnėlių k. (Obelių sen.)

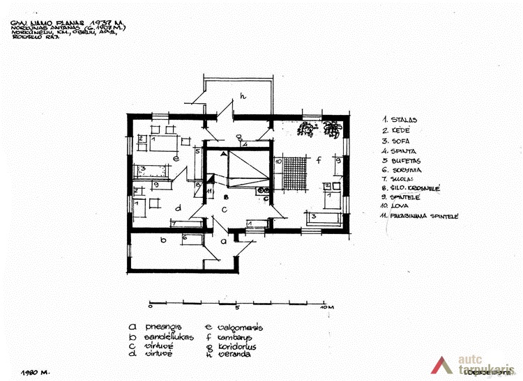
Aukštaitiškas gyvenamasis namas (gryčia), statytas 1937 m. Tarpukariu statyti namai modernėjo, tradicinis dviejų galų ir trijų patalpų namo planas keitėsi, atsirasdavo daugiau patalpų. Šiame name pristatyta ne tik veranda (į gerąjį kiemą), bet ir prieangis su sandėliuku (į ūkinį kiemą). Pastate atsirado nuo gryčios atitverta virtuvė, valgomasis. Krosnis su virykle išmūryta namo centre. Interjeras taip pat pakitęs. Namo langai padidinti, gana platūs.

Eligijus Juvencijus Morkūnas

 

 

Metai:
1937
Teritorijos:
Atgal į sąrašą