Kasčiukiškių ponų namas

Adresas: Kaišiadorių r. sav., Kasčiukiškių k. (Kaišiadorių apylinkės sen.)

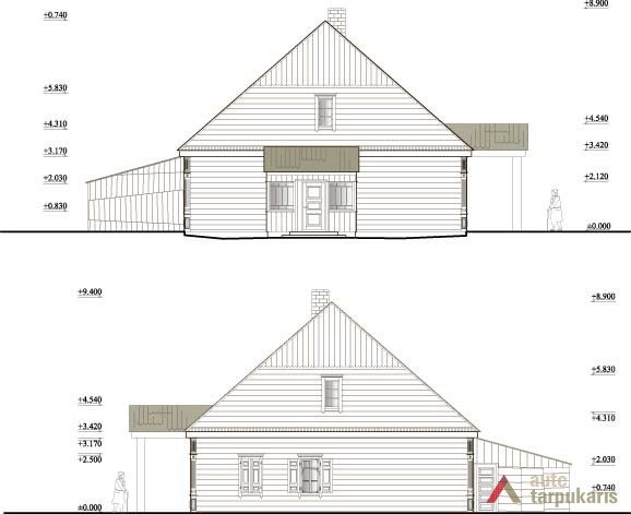
Kasčiukiškių dvaras įsikūręs prie mažo Uternos upelio, netoli Šešuolių ežero. Ponų namas nėra senas, tačiau tipiškas smulkių bajorų sodyboms. Stačiakampio tūrio, dvišlaičiu stogu, asimetriško plano (vienas galas ilgesnis). Pagrindiniame fasade pristatytas atviras prieangis (primenantis portiką), su masyviomis apvaliomis kolonomis ir dvišlaičiu stogeliu. Iš prieangio dvivėrės (įsprūdinės) durys veda į priemenę. Dar vienas įėjimas yra iš galo, kur koridoriumi patenkama į didžiausią reprezentacinę patalpą. Kitas namo galas padalytas į tris patalpas, viduryje – siauras kambariukas, labiau primenantis koridorių. Iš išorės namas apkaltas horizontaliomis lentomis, kertės dekoruotos vertikaliu profiliuotu apkalu. Langai tradicinio dalijimo – šešiarūčiai (iš 3 rėmo dalių), su gana kukliais langų apvadais ir įsprūdinėmis langinėmis. Mansardiniame aukšte patalpų nėra, pastogę apšviečia nedidelis skliauto langas. Krosnys ir dalis durų sovietmečiu pakeistos, kaminai taip pat nėra autentiški.

Ponų namas yra vertingas tradicinės architektūros pavyzdys, reikalaujantis išsamesnių architektūrinių tyrimų.

Rasa Bertašiūtė

Metai:
1922 - 1922
Teritorijos:
Atgal į sąrašą