Pulk. Dr. L. Janulionio gyvenamasis namas Aukštojoje Panemunėje

Adresas: A. Smetonos al. 11, Panemunės raj., Kaunas

Didžiausia sveikatingumo „židinių“ koncentracija tarpukario Lietuvoje telkėsi aplink sostinę. To priežastimi, tikėtina, jog tapo bendrieji miesto savivaldos generuojami „švaros politikos“ veiksniai[1] bei poilsio ir higienos kultūros, kaip būtinos sąlygos formuojant modernią, vakarietišką gyvenseną, užsienio pavyzdžiai, kaip antai, „Anglijoje triukšmingesni sluoksniai išvyksta užmiestin penktadienio vakare ir grįžta į miestą antradienio rytą. Tokiu būdu keturias naktis per savaitę jie praleidžia užmiestyje, gryname ore. (...) Higieniškam gyvenimui kauniškiai turi ypač patogias sąlygas.”[2] 1919 metais Lietuvos Siaurųjų Geležinkelių Valdyba aprūpino kelis Kauno rajonus siaurojo kelio traukinėliais, jų tarpe ir Aukštąją Panemunę (su J. Basanavičiaus šilu prie Vičiūnų kaimo)[3], nuo 1931 metų tapusią miesto dalimi. Pagerinus susisiekimą, A. Panemunė XX amžiaus trečiojo dešimtmečio pradžioje palaipsniui virto vis labiau pamėgta sostinės gyventojų atokvėpio oaze: „tai yra iš visų apylinkių gražiausia, sveikiausia ir gegužinėms patogiausia vieta, (...) ypač mums šančiškiams malonu, išsinėrusiems iš pat vidurio dulkių pragaro.“[4] Tuo metu įsteigtos ne tik pirmosios gydymo įstaigos, bet ir numatyta projektuoti daugiau vasarnamių[5]. Prabangesnes kurorto vilas ir gyvenamuosius namus pradėjo statyti labiau pasiturintys A. Panemunės ir sostinės gyventojai naujai suplanuotose Gailutės, Vaidilos, Upėlio gatvėse bei A. Smetonos alėjoje, priešais Nemuną. Vienas iš įdomesnių šioje alėjoje iškiusių pastatų, kuriame jungiama tiek moderni mintis, tiek lokali tradicija  – pulkininko daktaro L. Janulionio medinis gyvenamasis namas.

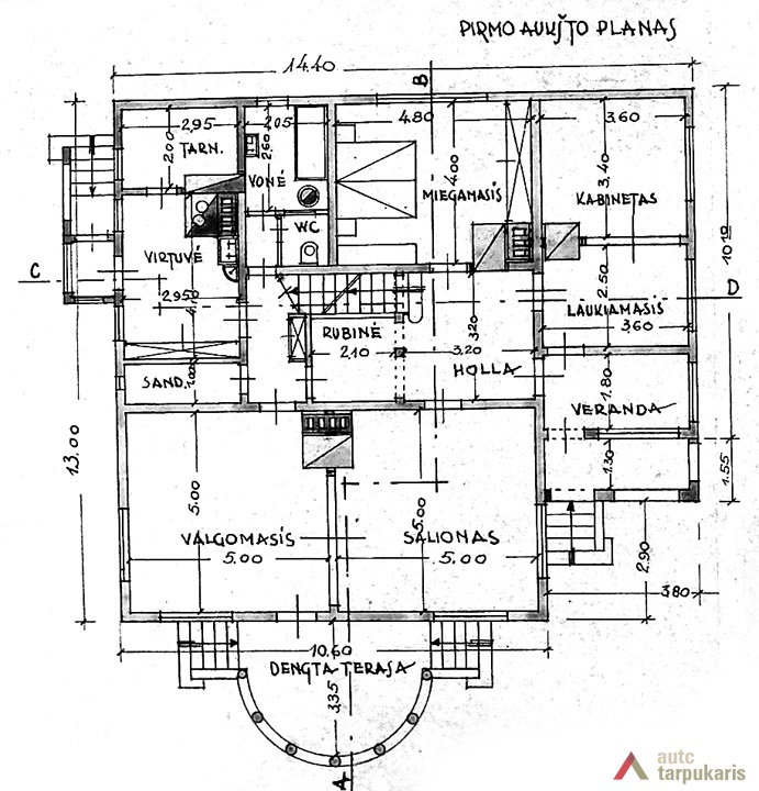
Pagal inžinieriaus Antano Gruodžio projektą 1937 metais statytam pastatui būdingos modernizmo užuominos – fasade iš A. Smetonos alėjos įkomponuota pusapskritė terasa, virš jos - balkonas, taip pat apskritas langas frontone, tiek salkos balkone, tiek pirmajame aukšte vertikaliais elementais skaidytos durys. Nors pastato tūris artimas sodybiniams namams, tačiau,  dėl žaismingai įkomponuotų langų ir erdvios terasos – kuriamas lengvumo pojūtis, ypač juntamas vidaus erdvėse, į kurias patenka daugiau šviesos. L. Janulionio name patalpos planuojamos laisvai. Erdvės suskirstytos funkcinėmis zonomis į poilsio, darbo, valgomojo ir pagalbines. Namo teritorijoje be pastato suprojektuotas sandėlis, o likusi sklypo dalis – sutvarkyta „kurortiškai”, paliekant erdvės sodui[6].

Pulkininko gyvenamasis namas, tai tik vienas iš pavyzdžių, kaip per šiek tiek daugiau nei penkis metus A. Panemunė iš smulkaus priemiesčio virto moderniu rekreaciniu sostinės rajonu, masiškai traukiančiu kauniečius ne tik pasilinksminti kurhauze, atgauti jėgas mineralinėse voniose, bet ir perkelti savo buitį atokiau nuo šurmulingo didmiesčio triukšmo ir dulkių. Beje, kurorto populiarumą iliustruoja ir faktas, jog 1939 metais sklypo kainos A. Panemunėje buvo išaugusios net 400 procentų[7].

Viltė Migonytė


[1] Kauno kronika. Lietuva, 1921 m. sausio 9 d., p. 2.

[2] D-ras J. Venckūnas. Užmiesčių sutvarkymo reikšmė. Lietuvos aidas, 1930 m. gegužės 26 d., p. 3.

[3] Kauno kronika. Lietuva, 1919 m. rugpjūčio 2 d., p. 3.

[4] Panemunės rojus ir Šančių pragaras. Lietuva, 1923 m. birželio 27 d., p. 4.

[5] Kuriuose rajonuose Kauno mieste nebus leidžiama statyti pramonės įmonių. Lietuvos žinios, 1931 m. spalio 30 d., p. 4.

[6] Naujosios Panemunės sutvarkymo reikalas. Lietuvos aidas, 1931 m. gegužės 18 d., p. 4.

[7] Kodėl keičiamas kurortų įstatymas. Kodėl nuosavybei įsigyti kurorte norima įvesti leidimų sistemą. Lietuvos aidas, 1939 m. sausio 2 d., p. 6. 

Architektai / Inžinieriai:
Metai:
1937
Teritorijos:
Atgal į sąrašą