Gyvenamasis namas Valiuliškių kaime

Adresas: Biržų r. sav., Valiuliškių k. (Papilio sen.)

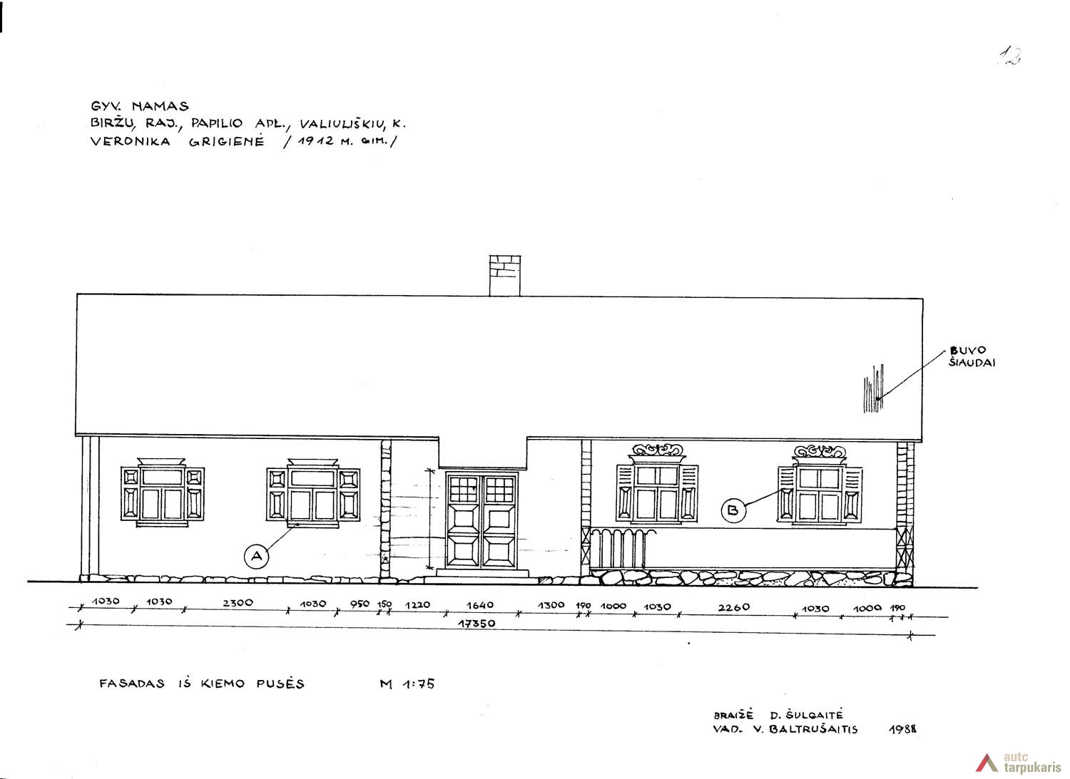
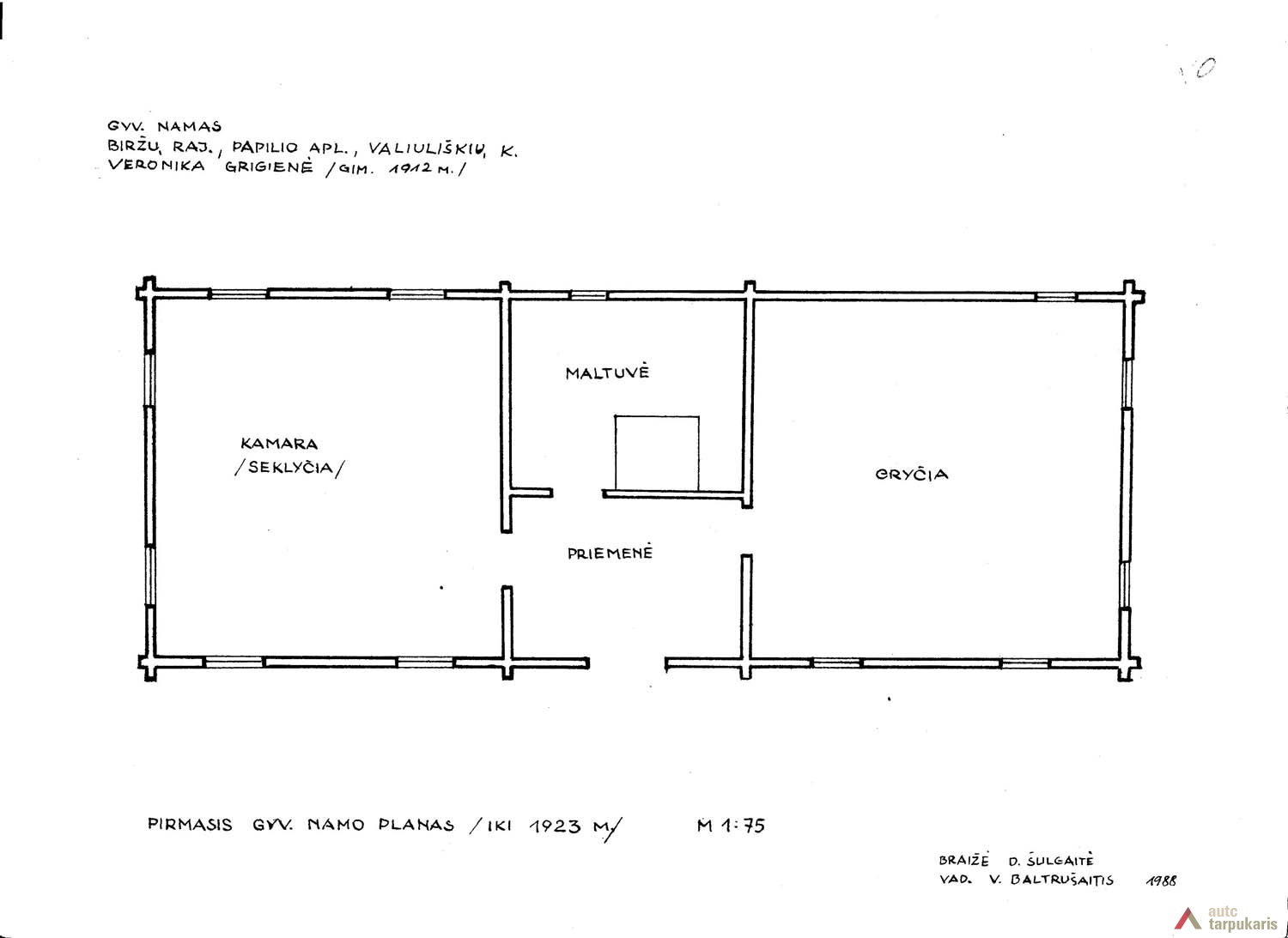
Tipiškas aukštaitiškas dviejų galų gyvenamasis namas su erdvia priemene centre ir galinėmis patalpomis – gryčia ir seklyčia. Priemenėje atskirta „maltuvė“ – patalpa, kurioje stovėjo rankinės girnos. Iš „maltuvės“ pakeltas tradicinis Šiaurės Lietuvai kaminas – virenė, kur buvo gaminamas alus, verdamas valgis, rūkoma mėsa ir kt. Namas suręstas ant akmeninių pamatų. Apatinė gryčios sienojų dalis iki langų puošta vertikaliai apkaltomis lentomis, kurių viršuje išpjautos dekoratyvios arkutės. Namo kerčių puošyba taip pat būdinga Aukštaitijai. Kerčios apkaltos lentomis, apatinėje dalyje dekoruotomis raižytu geometriniu piešiniu. Sienojų ir kerčių apkalimai saugojo nuo aplinkos poveikio. Laukujės namo durys dvivėrės, įsprūdinės, puoštos, su įstiklinta viršutine dalimi. Virš durų stogelis. Namo langai keturių dalių. Gryčios dalies langai turi puošnias langines ir augalinio ornamento antlangius. Seklyčios langai ir langinės santūresnių formų. Galinis namo fasadas ypač puošnus, skliauto langelis trijų dalių, grakščiai papuoštas. Namo stogas pusvalminis, dengtas šiaudais.

Eligijus Juvencijus Morkūnas

Metai:
1900 - 1923
Teritorijos:
Atgal į sąrašą