Gyvenamasis namas Visgirdų kaime

Adresas: Vilkaviškio r. sav., Visgirdų k. (Pilviškių sen.)

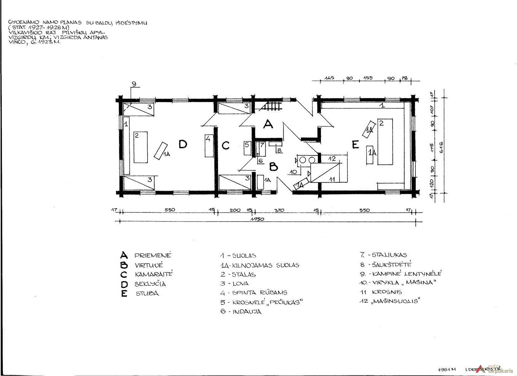
Tipiškas suvalkietiškas gyvenamasis namas (stuba). Pastatas ilgas (17,5 m) ir siauras (6,16 m). Statytas apie 1926–1927 m. Tradiciškai stubos centrinėje dalyje yra virtuvė, į kurią patenkama per priemenę. Šio namo virtuvė dar turi atskirą išėjimą į lauką. Viename namo gale yra seklyčia, kitame – stuba. Centrinėje dalyje atitverta kamaraitė. Stubos planinė struktūra plėtojosi iš trijų narvelių dviejų galų namo, ilgainiui išsiskaidydama į daugiau patalpų. Pastatui šildyti naudota tik šiam regionui būdinga krosnis-viryklė („mašina“) su pakura iš virtuvės ir šiltasuoliu („mašinsuoliu“) stuboje. Seklyčia nebuvo šildoma, joje mažiau gyventa, stovėdavo geresni baldai, čia priimdavo svečius.

1981 m. namas priklausė A. Vizgirdai

 

Eligijus Juvencijus Morkūnas  

 

Metai:
1927 - 1928
Teritorijos:
Atgal į sąrašą