Gyvenamasis namas Opšrūtų kaime (A. Bakšio)

Adresas: Vilkaviškio r. sav., Opšrūtų k. (Pilviškių sen.)

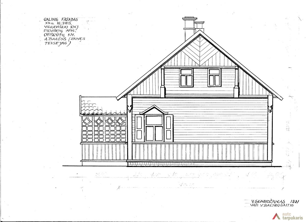
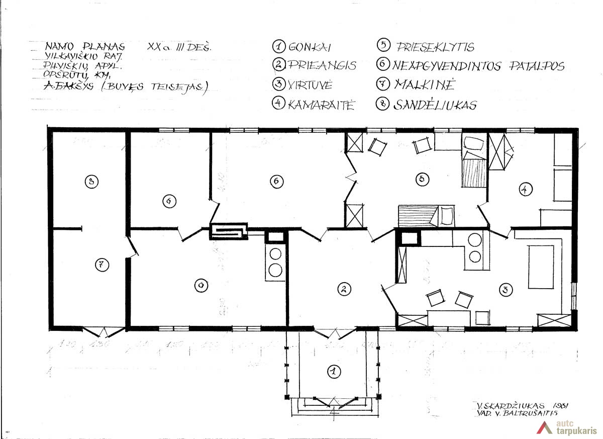
Namas statytas XX a. trečiame dešimtmetyje ir priklausė teisėjui A. Bakšiui. Pastatas ilgas ir siauras, su daug patalpų. Pasižymi gausiu dekoru, puošnumu. Namas medinis, suręstas iš pjaustytų rąstų ir visas apkaltas lentelėmis. Lentelės sukaltos skirtingai: cokolinė dalis (iki langų) – vertikaliai, pagrindinė namo dalis – horizontaliai, o pastogė – vėlgi vertikaliai, su dailiai išpjaustytais lentelių galais (širdelės formos), kurie sudaro ornamentą. Kertės apkaltos lentomis nuo aplinkos poveikio, pagegnių skydelis dekoratyvus (kaip ir apkalos – širdelės formos). Langai trijų dalių, virš jų – masyvūs sandrikai. Langinės įsprūdinės (dviejų įsprūdų). Stogas dvišlaitis su nedideliais užlaidais, dengtas čerpėmis. Namo skliautas puošnus, suskaidytas į penkias plokštumas, apkaltas vertikliai ir įžambiai lentelėmis – kaip tik tai ir suteikia jam puošnumo. Įžambiai sukaltos lentelės sudaro apverstos eglutės piešinį. Skliauto puošybą papildo maži langeliai. Į namą patenkama pro dengtą prieangį – įstiklintą verandą. Pagrindinį jos piešinį sudaro vertikalūs ir kryžmiški elementai, prieangiui suteikiantys lengvumo ir grakštumo. Stogelio kraštas puoštas pjaustiniais. Durys įstiklintos, dvivėrės. Prieangio apatinė dalis vertikaliai apkalta lentelėmis. Namo gale pristatytas priestatėlis, kuriame įrengtas sandėlis ir malkinė. Pamatas sumūrytas iš plytų. Stogas dvišlaitis, su nedideliais užlaidais, dengtas čerpėmis. Pastato planas (be priestatėlio) simetriškas, ne itin būdingas suvalkietiškoms stuboms. Iš viso turėjo 8 kambarius, visus pereinamus. Šildymui naudotos dvi krosnys.

 

Eligijus Juvencijus Morkūnas

 

 

Metai:
1920 - 1930
Teritorijos:
Atgal į sąrašą