Gyvenamasis namas Senkiškių kaime (E. Skrinskienės)

Adresas: Vilkaviškio rajono sav., Senkiškių k. (Gižų sen.)

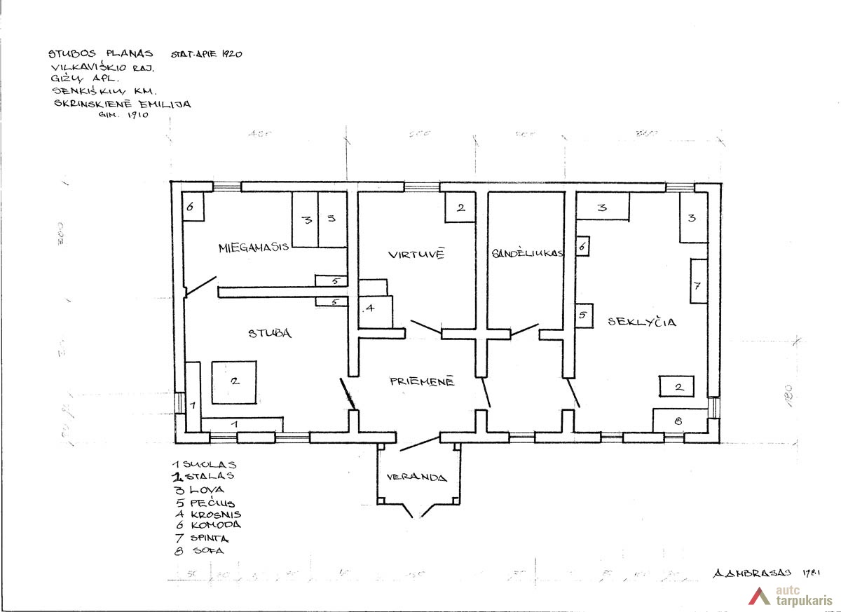
Tradicinė suvalkietiška dvigalė stuba statyta apie 1920 m. Stubos planinė struktūra plėtojosi iš trijų narvelių dviejų galų namo, ilgainiui išsiskaidydama į daugiau patalpų. Šią stubą sudaro tokios būdingos patalpos: namo centre – priemenė ir virtuvė (virtuvėje tradicinė krosnis su virykle („mašina"), viename namo gale stuba, kur atitvertas miegamasis. Už virtuvės atitvertas sandėliukas. Kitame namo gale – seklyčia. Seklyčioje paprastai priimdavo svečius, joje stovėdavo geresni baldai, o stuboje gyvendavo nuolat. Įėjimas į pastatą per įstiklintą prieangį-verandą.

1981 m. namas priklausė Emilijai Skrinskienei.

 

Eligijus Juvencijus Morkūnas

 

Metai:
1920
Teritorijos:
Atgal į sąrašą