Gyvenamasis namas Starkų kaime (J. Skatiko)

Adresas: Vilkaviškio r. sav., Starkų k. (Pilviškių sen.)

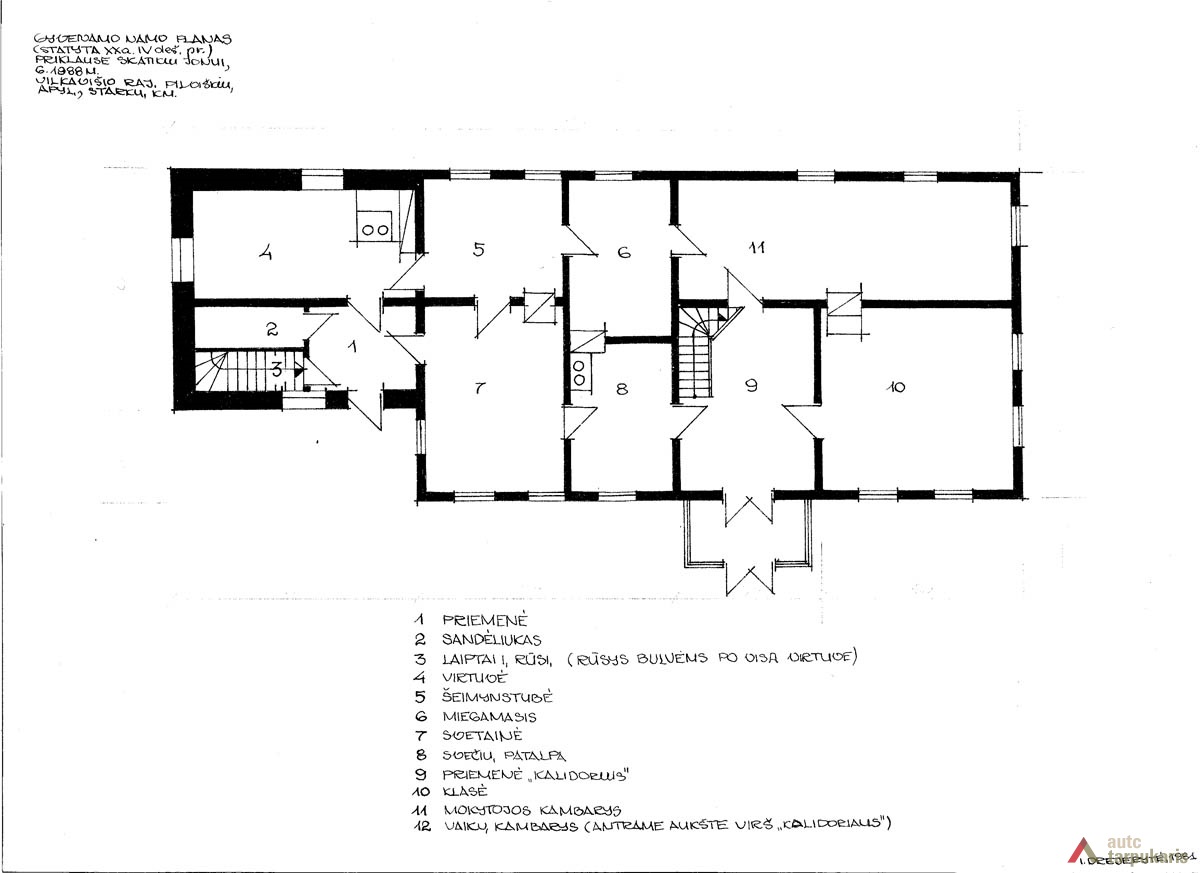
Gyvenamasis namas pastatytas XX a. ketvirtame dešimtmetyje. Turtingesniųjų ūkininkų statiniai šiuo laikotarpiu pakinta, tradicinė suvalkietiška stuba modernėja. Šio namo tūris ir planas taip pat pakitęs. Pastato gale pristatytas kiek žemesnis mūrinis priestatėlis su atskiru įėjimu. Priestatėlio stogas dvišlaitis, o pagrindinio pastato – pusvalminis, dengtas skarda. Namo aukštis pakito dėl paukštintos pastogės – ertikio. Abiejose stogo pusėse iškelti tuo laikotarpiu populiarėjantys dvišlaičiai mezoninai. Taip pastogėje atsirado galimybė įrengti papildomus kambarius. Įstiklintas prieangis (veranda) itin puošnus: stiklai suskaidyti mažesnėmis plokštumomis, durys dvivėrės, įsprūdinės konstrukcijos, stogelio skliautas puoštas. Namo langai dideli, su plačiomis įsprūdinėmis langinėmis. Namo skliautas puošnus, suskaidytas į kelias plokštumas, apkaltas horizontaliai, vertikliai ir įžambiai lentelėmis; tai suteikia skliautui puošnumo. Įžambiai sukaltos lentelės sudaro apverstos eglutės piešinį. Skliauto puošybą papildo maži rombo formos langeliai. Šio namo planavimas modernesnis – virtuvė nebe centrinėje pastato dalyje, o su virykla nukelta į vieną namo galą ir įrengta šalia stubos (šeimynstubės). Atsiradęs atskiras įėjimas į virtuvę iš pastato galo. Centrinėje pastato dalyje tebeišlikusi priemenė susiaurėjusi, virtusi koridoriumi, joje įrengti ir laiptai į mansardą. Tame pačiame gale tarp stubos ir priemenės įrengtas miegamasis. Vienu metu šiame pastate veikė mokykla.

 

Eligijus Juvencijus Morkūnas

 

Literatūra:

 

Kačinskaitė, I, et al. Suvalkijos (Sūduvos) tradicinė kaimo architektūra. Sud. ir spec. red. Libertas Klimka. Vilnius: Etninės kultūros globos taryba, 2008, p. 17.

 

Metai:
1930 - 1935
Teritorijos:
Atgal į sąrašą