Gyvenamasis namas Parausių kaime

Adresas: Vilkaviškio r. sav., Parausių k. (Pilviškių sen.)

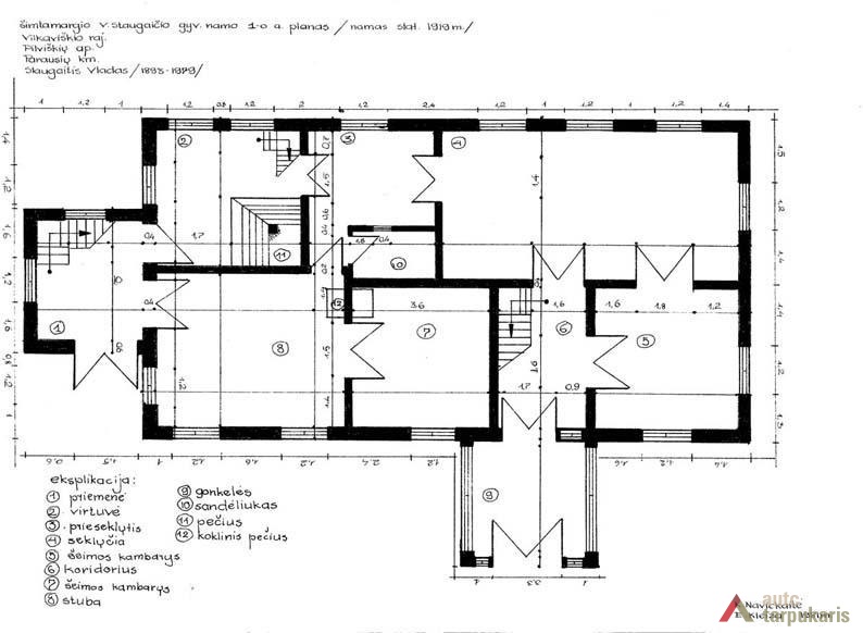
Suvalkietiškas gyvenamasis namas itin puošnus. Statytas 1919 m., turtingo ūkininko Vlado Staugaičio, turėjusio 100 margų žemės, sodyboje. Turtingesniųjų ūkininkų statiniai šiuo laikotarpiu pakito, tradicinė suvalkietiška stuba modernėjo. Šio namo tūris ir planavimas taip pat pakitęs. Pastato gale pristatytas kiek žemesnis priestatėlis su atskiru įėjimu. Abiejose stogo pusėje iškelti tuo laikotarpiu populiarėjantys dvišlaičiai mezoninai. Taip pastogėje atsirado galimybė įrengti papildomus kambarius. Įstiklintas prieangis (veranda) itin puošnus: stiklai suskaidyti mažesnėmis plokštumomis, apačia vertikaliai apkalta profiliuotomis lentelėmis, durys dvivėrės, įsprūdinės konstrukcijos, stogelio skliautas puoštas. Namo langai dideli, su dekoratyviais kiaurapjūviais antlangiais. Namo skliautas puošnus, suskaidytas į kelias plokštumas, apkaltas horizontaliai, vertikliai ir įžambiai lentelėmis, tai suteikia skliautui puošnumo. Skliauto puošybą papildo maži rombo formos langeliai. Mezoninų skliautai taip pat dekoruoti skirtingai apkalant lentelėmis. Visas namas puoštas karnizais, vėjalentėmis. Pastatas suręstas ant masyvių akmeninių ir plytinių pamatų. 

Šio namo planas gerokai pakitęs, palyginti su tradicine stuba, modernesnis: virtuvė nebe centrinėje pastato dalyje, o su virykle nukelta į vieną namo galą ir įrengta šalia stubos (šeimynstubės). Atsiradęs atskiras įėjimas į virtuvę iš pastato galo. Centrinėje pastato dalyje tebesanti priemenė susiaurėjusi, virtusi koridoriumi, joje įrengti ir laiptai į mansardą. Tame pačiame gale tarp stubos ir priemenės įrengtas miegamasis.

Eligijus Juvencijus Morkūnas

 

Literatūra:

Kačinskaitė, I., et al. Suvalkijos (Sūduvos) tradicinė kaimo architektūra. Sud. ir spec. red. Libertas Klimka. Vilnius: Etninės kultūros globos taryba, 2008, p. 17.

 

Metai:
1919
Teritorijos:
Atgal į sąrašą